Oude Molenweg 35- 9 Hengelo

Omschrijving

Aan de rand van het stadscentrum van Hengelo gelegen 2kamer-appartement.

Het appartement wordt volledig gestoffeerd aangeboden. Het appartement is voorzien van een mooie pvc vloer en raambekleding. Direct klaar om te wonen!

Indeling:

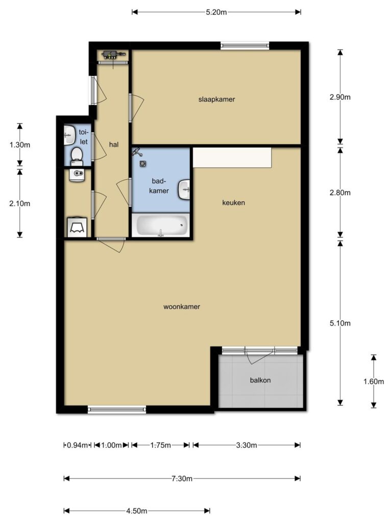
Entree, hal met meterkast, toegang tot het toilet en de badkamer, één royale slaapkamer, open keuken en de woonkamer met voorgelegen balkon.

De gezellige en sfeervolle living meet een oppervlakte van circa 33 m2, biedt een ruimte mate aan daglichtinval en geeft toegang tot het royale balkon van circa 6 m2.

De open keuken is voorzien van een inductiekookplaat en ingebouwde oven.
De hal geeft toegang tot de royale slaapkamer van circa 15 m2 en het separate toilet (hangend met ingebouwde spoeling) met fontein.

De badkamer is compleet betegeld en uitgevoerd met een ruime douchehoek, vaste wastafel, ligbad en een radiator.

Berging en parkeervoorzieningen:
Op de begane grond bevindt zich een eigen berging (circa 4 m2) voorzien van elektra/verlichting. U heeft de beschikking over een eigen, afgesloten parkeerplaats. Daarnaast is er in de nabije omgeving volop openbare parkeergelegenheid.

Bijzonderheden:
– Beschikbaar per 01-04-2026
– Huurprijs €1100,- per maand excl. g/w/e
– Waarborgsom 1 maand huur
– Volledig gestoffeerd
– Het appartement heeft een eigen parkeerplaats onder het complex

Geïnteresseerd?

Ga direct naar het aanmeldformulier. aanmeldformulier

Vergelijkbaar